Skip to content
housincopremium.vn
  • Trang chủ
  • Tin tức
  • Review
  • Mẫu nhà cấp 4
  • Phong thuỷ
housincopremium.vn

Khám Phá Dự Án Căn Hộ Cao Cấp Millennium Masteri Quận 4

By seo Tháng 2 14, 2025 0
Khám Phá Dự Án Căn Hộ Cao Cấp Millennium Masteri Quận 4
Mục lục

Millennium Masteri Quận 4 là một dự án bất động sản cao cấp tọa lạc tại trung tâm Quận 4, TP.HCM, được phát triển bởi tập đoàn Masterise Homes. Với những điểm mạnh nổi bật về vị trí, thiết kế và tiện ích, dự án này hứa hẹn sẽ mang đến cho cư dân một không gian sống đẳng cấp và tiện nghi bậc nhất, là lựa chọn hàng đầu cho cư dân và các nhà đầu tư tại TP.HCM.

Chủ Đầu Tư Millennium Masteri Là Ai?

Dự án căn hộ cao cấp Millennium Masteri được đầu tư và phát triển bởi Công ty Phát triển BĐS Masterise Homes – thuộc Masterise Group, thành lập vào năm 2007. Với sứ mệnh tạo ra những công trình mang tính đột phá và sáng tạo, Masterise Homes đã khẳng định được vị thế tiên phong của mình trên thị trường bất động sản, không ngừng nâng cao chất lượng sống cho cộng đồng cư dân. Các dự án của tập đoàn đều không chỉ dừng lại ở nhu cầu cư trú mà còn tạo ra giá trị gia tăng vững bền cho từng khu vực.

Một số thành tựu nổi bật của Masterise Homes bao gồm:

  • Top 10 chủ đầu tư hàng đầu tại Việt Nam năm 2015
  • Top 10 dự án BĐS hấp dẫn nhất tại Việt Nam năm 2016
  • Đạt được 8 giải thưởng tại Việt Nam PropertyGuru Awards 2020, với nhiều hạng mục khác nhau.

Vị Trí Dự Án Millennium Masteri

Millennium Masteri nằm tại mặt tiền số 132 Bến Vân Đồn, phường 6, Quận 4, ngay giữa lòng TP.HCM. Dự án chỉ cách trung tâm chính khoảng vài bước chân, mang lại thuận lợi trong việc di chuyển và tiếp cận các tiện ích và dịch vụ xung quanh.

READ:  Căn hộ Masteri Thảo Điền: Tự hào biểu tượng sống xanh tại TP.HCM

Sơ đồ vị trí Millennium Masteri tại Quận 4Sơ đồ vị trí Millennium Masteri tại Quận 4

Kết Nối Nhanh Đến Các Địa Điểm Trung Tâm:

Từ dự án căn hộ Millennium, cư dân có thể dễ dàng di chuyển đến các khu vực trung tâm như:

  • Một phút đến Quận 1.
  • Ba phút đến UBND Quận 4, bệnh viện lớn nhất cả nước.
  • Mười phút đến sân bay Tân Sơn Nhất.

Hướng Lợi Từ Hạ Tầng Khu Vực:

Vị trí của căn hộ Millennium Masteri nằm trong khu vực đang mở rộng của trung tâm TP.HCM, với kế hoạch phát triển hạ tầng giao thông trong tương lai, dự báo tạo ra sức hút mạnh mẽ cho giá trị tài sản nơi đây.

Tiện Ích Đa Dạng Tại Căn Hộ Millennium Masteri

Nhằm mang lại cho cư dân một cuộc sống tiện nghi, sang trọng, chủ đầu tư đã chú trọng vào việc trang bị hệ thống tiện ích hiện đại, đa dạng bên trong dự án. Các tiện ích nội khu bao gồm:

  • Hồ bơi tràn bờ, khu BBQ ngoài trời.
  • Phòng tập gym hiện đại với trang thiết bị cao cấp.
  • Khu vui chơi dành cho trẻ em và vườn nướng BBQ.

Sảnh của chung cư Millennium MasteriSảnh của chung cư Millennium Masteri

Mặt Bằng Và Thiết Kế Căn Hộ Millennium Masteri Quận 4

Dự án Millennium Masteri được thiết kế với tổng diện tích 7.302,6 m². Mật độ xây dựng chỉ chiếm 35%, phần còn lại dành cho không gian sống xanh và các tiện ích dịch vụ. Kiến trúc dự án có 02 khối tháp cao 34 tầng, cung cấp cho thị trường 650 căn hộ.

Phối cảnh dự án Millennium MasteriPhối cảnh dự án Millennium Masteri

Các căn hộ tại Millennium Masteri được thiết kế hiện đại, tối ưu diện tích để tăng cường công năng sử dụng. Nhà ở tất cả đều có ban công rộng rãi, đảm bảo ánh sáng tự nhiên và tầm nhìn thoáng đãng.

READ:  Thiên đường sống tại dự án căn hộ cao cấp Kingdom 101 quận 10

Mặt Bằng Chi Tiết Dự Án Millennium Masteri

Sơ đồ mặt bằng tầng 3 - 6 dự án Millennium MasteriSơ đồ mặt bằng tầng 3 – 6 dự án Millennium Masteri
Mặt bằng tầng 7 - 31 dự án Millennium MasteriMặt bằng tầng 7 – 31 dự án Millennium Masteri
Sơ đồ mặt bằng tầng căn hộ pentvilla dự án Millennium MasteriSơ đồ mặt bằng tầng căn hộ pentvilla dự án Millennium Masteri

Nội Thất Căn Hộ Millennium Masteri

Các căn hộ tại đây đều được bàn giao với nội thất sang trọng, tân tiến, đảm bảo tính tiện nghi và thẩm mỹ cao. Người cư dân chỉ cần dọn vào và tận hưởng cuộc sống thoải mái, không cần phải đầu tư thêm vào việc thiết kế nội thất.

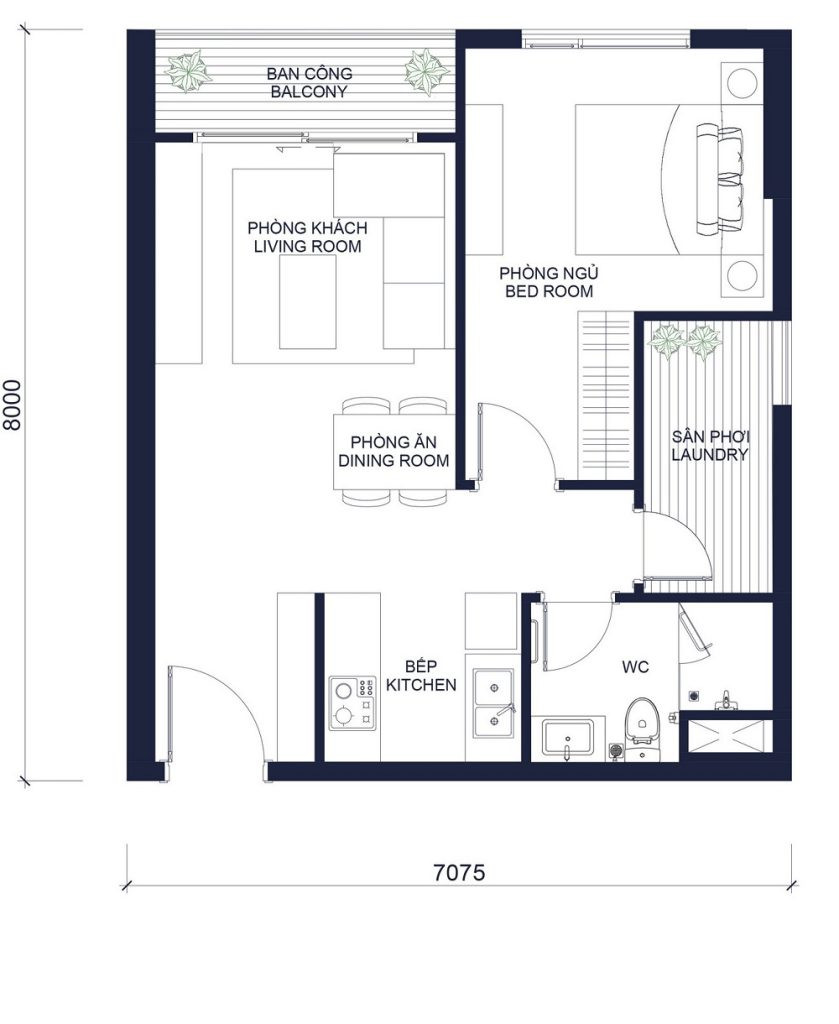
Thiết kế căn hộ 1 phòng ngủ - dự án Millennium MasteriThiết kế căn hộ 1 phòng ngủ – dự án Millennium Masteri

Giá Bán Căn Hộ Millennium Masteri Quận 4 Mới Nhất

Giá bán căn hộ Millennium Masteri được cập nhật mới nhất rơi vào khoảng 50 – 55 triệu đồng/m², thấp hơn khoảng 15 – 20% so với những dự án căn hộ cùng khu vực như Saigon Royal, Tresor, Icon 56,…

Căn hộ Diện tích Giá bán
1 phòng ngủ từ 53.6m2 2.5– 2.9 tỷ đồng/căn
2 phòng ngủ từ 65.11m2 – 74.92m2 3.3 tỷ – 4.7 tỷ đồng/căn
3 phòng ngủ từ 97.84m2 – 107.88m2 5.2 tỷ – 6.9 tỷ đồng/căn

Vì Sao Nên Sở Hữu Ngay Căn Hộ Millennium Masteri Quận 4?

Vị Trí Trung Tâm Đắc Địa

Vị trí luôn là yếu tố quan trọng hàng đầu đối với một dự án bất động sản, quyết định giá trị căn hộ mà bạn sở hữu. Millennium Masteri Quận 4 sở hữu vị trí đắc địa nhất Quận 4 và TP.HCM, chỉ cách Quận 1 qua một cây cầu.

Tiện Ích Vượt Trội

Sống tại Millennium, bạn sẽ được trải nghiệm cuộc sống đẳng cấp với đầy đủ các tiện ích hiện đại như: trung tâm thương mại, hồ bơi ngoài trời, phòng gym, spa, quán cà phê, khu vui chơi giải trí, nhà hàng sang trọng,…

READ:  Vị trí chung cư cao cấp Palm Garden sẽ tăng giá nhanh trong tương lai

Cơ Hội Đầu Tư Sinh Lời Cao

Với số lượng giới hạn khoảng 650 căn hộ, vị trí liền kề Quận 1 và quy hoạch Quận 4 trở thành trung tâm của TP.HCM, giá trị các căn hộ tại Millennium chắc chắn sẽ gia tăng đáng kể theo thời gian.

Giá Bán Cạnh Tranh

Dự kiến, giá bán căn hộ Millennium vào khoảng 50-55 triệu/m². Mức giá cạnh tranh so với các dự án cùng phân khúc. Thực tế, Millennium có giá thấp hơn 15-20% so với các căn hộ xung quanh như Saigon Royal, Tresor, Icon 56.

Thanh Toán Linh Hoạt

Chỉ cần thanh toán 30% cho đến khi nhận nhà mà không cần vay ngân hàng, đây là cơ hội lớn để đầu tư sinh lời, đồng thời thể hiện năng lực tài chính của chủ đầu tư.

Một Số Hình Ảnh Thực Tế Của Dự Án Millennium Masteri Quận 4

View thực tế của dự án Millennium Masteri Quận 4View thực tế của dự án Millennium Masteri Quận 4Ảnh thực tế của dự án Millennium Masteri Quận 4Ảnh thực tế của dự án Millennium Masteri Quận 4Ảnh chụp dự án Millennium Masteri Quận 4Ảnh chụp dự án Millennium Masteri Quận 4Bể bơi của dự án Millennium Masteri Quận 4Bể bơi của dự án Millennium Masteri Quận 4View bể bơi vô cực của dự án Millennium Masteri Quận 4View bể bơi vô cực của dự án Millennium Masteri Quận 4

Dự án Millennium Masteri Quận 4 không chỉ là nơi an cư lý tưởng mà còn là cơ hội đầu tư sinh lời hiệu quả. Với những thông tin chi tiết trên, hy vọng bạn đã có cái nhìn tổng quan về dự án này. Để tìm hiểu thêm, hãy truy cập website “housincopremium.vn” để biết thêm thông tin chi tiết và những bài viết giá trị khác.

Share
facebookShare on FacebooktwitterShare on TwitterpinterestShare on Pinterest
linkedinShare on LinkedinvkShare on VkredditShare on ReddittumblrShare on TumblrviadeoShare on ViadeobufferShare on BufferpocketShare on PocketwhatsappShare on WhatsappviberShare on ViberemailShare on EmailskypeShare on SkypediggShare on DiggmyspaceShare on MyspacebloggerShare on Blogger YahooMailShare on Yahoo mailtelegramShare on TelegramMessengerShare on Facebook Messenger gmailShare on GmailamazonShare on AmazonSMSShare on SMS
Post navigation
Previous post

Astral City Bình Dương: Ngôi Nhà Mơ Ước Của Mọi Gia Đình

Next post

Hado Centrosa: Khám Phá Dự Án Căn Hộ Cao Cấp Tại Trung Tâm Quận 10, TPHCM

seo

seo

Related Posts

Categories Tin tức Khám Phá Dự Án Căn Hộ Cao Cấp Millennium Masteri Quận 4

Nổ hũ Vin777 – Cơ hội săn jackpot cực khủng mỗi ngày

Categories Tin tức Khám Phá Dự Án Căn Hộ Cao Cấp Millennium Masteri Quận 4

Hướng dẫn nạp tiền Rongho99 nhanh gọn và giao dịch tiện lợi

Cách Xem Trực Tiếp Các Trận Thể Thao Đỉnh Cao

Leave a Comment Hủy

Xem thêm

Categories Tin tức Nổ hũ Vin777

Nổ hũ Vin777 – Cơ hội săn jackpot cực khủng mỗi ngày

Tháng 10 24, 2025
Hướng dẫn nạp tiền Rongho99 nhanh gọn và tiện lợi nhất

Hướng dẫn nạp tiền Rongho99 nhanh gọn và giao dịch tiện lợi

Tháng 10 23, 2025

Cách Xem Trực Tiếp Các Trận Thể Thao Đỉnh Cao

Tháng 9 23, 2025

Hướng Dẫn Chơi Baccarat Trực Tuyến Tại Kubet11 Từ A Đến Z

Tháng 9 23, 2025

Lô tô, xổ số và slot: quản lý vốn thông minh tại 33bet

Tháng 9 23, 2025

CEO H3bet Cao Tuyết Lệ: Chiến lược nâng tầm thương hiệu cá cược tại châu Á

Tháng 9 22, 2025

Đăng nhập Azbet88 cực nhanh: Bí quyết truy cập an toàn mọi lúc

Tháng 9 19, 2025

Slot Ai Cập cổ đại “Legacy of Egypt” tại pq88 tung bonus cực sốc

Tháng 9 19, 2025

Đăng nhập YSB66 nhanh gọn: Giữ an toàn tuyệt đối khi truy cập

Tháng 9 18, 2025

Letou Cam kết chơi game có trách nhiệm

Tháng 9 18, 2025

Giới thiệu

Housincopremium.vn cung cấp các bài viết, đánh giá chi tiết về căn hộ, chung cư và nhà phố. Cung cấp thông tin giúp người tiêu dùng lựa chọn bất động sản phù hợp với nhu cầu và ngân sách của mình, từ đó hỗ trợ quyết định đầu tư đúng đắn.

k8cc, sv388, s666, vin88, pg88, xin88, 23win, fun88, nhà cái uy tín, soi kèo nhà cái, kubet11, vin777, letou, pq88, ibet68, kingbet86, 33bet, h3bet, azbet88, ysb66, vx88, km1888b, rongho99, w88, yo88, tài xỉu online, bet88, loto188, vb777, 12bet, 999bet, 123win, net79, 79king, good88, keonhacai5, 888b, ku68, go789, kubet77, i5bet, ae888, 78win, az888, hb88, topzo, 77ball, ab77, locla88, mb66, qh88, 123b, b52, iwinclub, mksport, win456, cado888, 789win, ee88, sanclub, xocdia88, typhu88, 99vina, 8kbet, hi88, jun88, u888, abc8, win55, xoso66, b52club, fo88, kubet77, Tin68, 33win,

Liên hệ

Phone: 0912 629 165
Email: [email protected]
Địa chỉ: Số 28, Đường Nguyễn Thị Minh Khai, Phường 6, Quận 3, TP Hồ Chí Minh, Việt Nam

Copyright © 2025 housincopremium.vn
Danh mục
  • Trang chủ
  • Tin tức
  • Review
  • Mẫu nhà cấp 4
  • Phong thuỷ