Skip to content
housincopremium.vn
  • Trang chủ
  • Tin tức
  • Review
  • Mẫu nhà cấp 4
  • Phong thuỷ
housincopremium.vn

15+ Mẫu Nhà Cấp 4 Mái Lệch Đơn Giản Từ 2 – 4 Phòng Ngủ Kèm Bản Vẽ

By seo Tháng 1 4, 2025 0
Đặc trưng của nhà cấp 4 mái lệch
Mục lục

Nhà cấp 4 mái lệch, một lựa chọn kiến trúc độc đáo và hiện đại, đang ngày càng được ưa chuộng bởi các gia đình trẻ tại Việt Nam. Khác biệt với những mẫu nhà cấp 4 truyền thống, thiết kế mái lệch mang đến sự mới lạ, phá cách, phù hợp với những gia chủ yêu thích sự sáng tạo và khác biệt. Bài viết này của Housincopremium sẽ cung cấp những thông tin chi tiết về đặc điểm, ưu nhược điểm, bản vẽ, chi phí xây dựng và những mẫu nhà cấp 4 mái lệch đẹp nhất, giúp bạn có cái nhìn tổng quan và đưa ra quyết định phù hợp cho tổ ấm tương lai.

Đặc Trưng Của Nhà Cấp 4 Mái Lệch

Nhà cấp 4 mái lệch sở hữu những nét đặc trưng riêng biệt, tạo nên dấu ấn kiến trúc độc đáo. Điểm nhấn nổi bật nhất chính là phần mái nhà được thiết kế nghiêng về hai phía, tạo nên sự bất đối xứng đầy ấn tượng. Độ cao, độ dốc và chiều dài của hai mái có thể khác nhau, tùy thuộc vào thiết kế và diện tích ngôi nhà.

Về công năng, nhà cấp 4 mái lệch cũng đa dạng như các mẫu nhà cấp 4 khác. Việc bố trí phòng chức năng phụ thuộc vào diện tích đất và nhu cầu sử dụng của gia chủ. Khoảng không gian trên mái lệch có thể được tận dụng làm gác lửng, kho chứa đồ hoặc thậm chí là một phòng ngủ nhỏ xinh.

READ:  Đặt Cọc Căn Hộ Raemian An Phú Bao Nhiêu?

Đặc trưng của nhà cấp 4 mái lệchĐặc trưng của nhà cấp 4 mái lệch

Ưu và Nhược Điểm Của Nhà Cấp 4 Mái Lệch

Ưu Điểm Nổi Bật

  • Kiến trúc độc đáo: Mái lệch tạo nên điểm nhấn khác biệt, mang đến vẻ đẹp hiện đại và thu hút cho ngôi nhà.
  • Thoát nước hiệu quả: Thiết kế mái lệch giúp nước mưa thoát nhanh chóng, tránh tình trạng ứ đọng, thấm dột và phát sinh rêu mốc.
  • Tận dụng không gian: Phần mái lệch có thể được sử dụng để tạo gác lửng, tăng diện tích sử dụng cho ngôi nhà.
  • Bền vững và chắc chắn: Kết cấu mái lệch được thiết kế để chịu được áp lực của gió bão và các tác động từ môi trường.
  • Phù hợp với nhiều diện tích: Mái lệch có thể được áp dụng cho nhiều diện tích đất khác nhau, từ nhỏ hẹp đến rộng rãi.

Ưu điểm của nhà mái lệchƯu điểm của nhà mái lệch

Hạn Chế Cần Lưu Ý

  • Kết cấu phức tạp: Việc thi công mái lệch đòi hỏi thợ có tay nghề cao và kinh nghiệm, do kết cấu mái khá phức tạp.
  • Thời gian thi công: Xây dựng nhà mái lệch thường mất nhiều thời gian hơn so với các loại mái khác như mái bằng, mái thái hay mái tôn.
  • Phân bổ trọng lực: Do mái lệch nên trọng lực phân bổ không đều, cần tính toán kỹ lưỡng phần móng để đảm bảo sự vững chắc cho ngôi nhà, tránh sụt lún.

Nhược điểm nhà mái lệchNhược điểm nhà mái lệch

Bản Vẽ Nhà Cấp 4 Mái Lệch

Bên cạnh vẻ đẹp ngoại thất, bố trí công năng bên trong cũng là yếu tố quan trọng. Dưới đây là một số bản vẽ nhà cấp 4 mái lệch để bạn tham khảo:

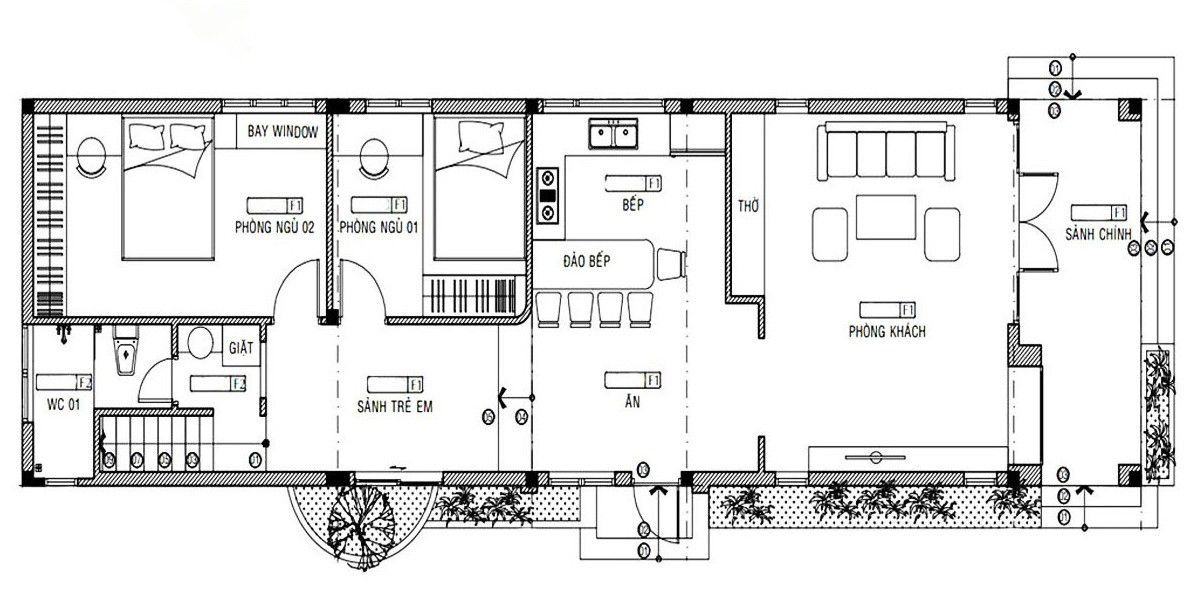
  • Nhà cấp 4 mái lệch 2 phòng ngủ: Phù hợp với gia đình trẻ, gồm phòng khách, bếp, 2 phòng ngủ và khu vực vui chơi.
READ:  10 Doanh nghiệp tồn kho Bất động sản nhà ở nhiều nhất 2023

Bản vẽ nhà 2 phòng ngủBản vẽ nhà 2 phòng ngủ

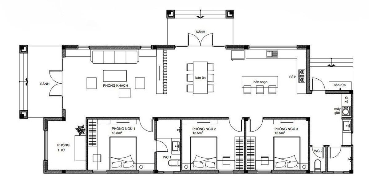
  • Nhà cấp 4 mái lệch 3 phòng ngủ: Thiết kế theo kiểu nhà vườn truyền thống với 2 lối vào, phòng thờ và khu vực giặt phơi riêng biệt.

Bản vẽ nhà 3 phòng ngủBản vẽ nhà 3 phòng ngủ

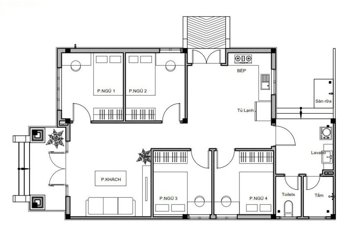
  • Nhà cấp 4 mái lệch 4 phòng ngủ: Ưu tiên không gian riêng tư cho các thành viên, phòng khách và bếp được thiết kế diện tích vừa phải.

Bản vẽ nhà 4 phòng ngủBản vẽ nhà 4 phòng ngủ

Chi Phí Xây Dựng Nhà Cấp 4 Mái Lệch

Chi phí xây dựng nhà cấp 4 mái lệch phụ thuộc vào nhiều yếu tố như diện tích, vật liệu xây dựng, nhân công, vị trí địa lý.

Công thức ước tính chi phí: Tổng diện tích xây dựng x Đơn giá vật liệu/m2. Đối với mái dốc, diện tích sàn thường được nhân với hệ số 1.4 để tính toán chi phí mái.

Ngoài ra, cần dự trù thêm chi phí phát sinh trong quá trình xây dựng. Ước tính, chi phí hoàn thiện một căn nhà cấp 4 mái lệch dao động từ 400 triệu đến 850 triệu đồng.

Tổng Hợp Mẫu Nhà Cấp 4 Mái Lệch Đẹp 2024

Mẫu nhà 2 phòng ngủ

Mẫu nhà 2 phòng ngủ 1Mẫu nhà 2 phòng ngủ 1Mẫu nhà 2 phòng ngủ 2Mẫu nhà 2 phòng ngủ 2Mẫu nhà 2 phòng ngủ 3Mẫu nhà 2 phòng ngủ 3Mẫu nhà 2 phòng ngủ 4Mẫu nhà 2 phòng ngủ 4

Mẫu nhà 3 phòng ngủ

Mẫu nhà 3 phòng ngủ 1Mẫu nhà 3 phòng ngủ 1Mẫu nhà 3 phòng ngủ 2Mẫu nhà 3 phòng ngủ 2Mẫu nhà 3 phòng ngủ 3Mẫu nhà 3 phòng ngủ 3Mẫu nhà 3 phòng ngủ 4Mẫu nhà 3 phòng ngủ 4

Mẫu nhà 4 phòng ngủ

Mẫu nhà 4 phòng ngủ 1Mẫu nhà 4 phòng ngủ 1Mẫu nhà 4 phòng ngủ 2Mẫu nhà 4 phòng ngủ 2Mẫu nhà 4 phòng ngủ 3Mẫu nhà 4 phòng ngủ 3

Mẫu nhà có gác lửng

Mẫu nhà gác lửng 1Mẫu nhà gác lửng 1Mẫu nhà gác lửng 2Mẫu nhà gác lửng 2Mẫu nhà gác lửng 3Mẫu nhà gác lửng 3

Kết Luận

Nhà cấp 4 mái lệch là một lựa chọn đáng cân nhắc cho những ai tìm kiếm sự độc đáo và hiện đại. Hy vọng bài viết này đã cung cấp cho bạn những thông tin hữu ích về thiết kế nhà cấp 4 mái lệch.

READ:  Thành lập thành phố Hoa Lư, tỉnh Ninh Bình

Housincopremium là website chuyên review, đánh giá chi tiết về căn hộ, chung cư, nhà phố, biệt thự tại Việt Nam. Chúng tôi cung cấp thông tin thị trường bất động sản đáng tin cậy, giúp bạn đưa ra quyết định đầu tư đúng đắn. Truy cập https://housincopremium.vn hoặc liên hệ hotline 0912 629 165 để được tư vấn. Địa chỉ: Số 28, Đường Nguyễn Thị Minh Khai, Phường 6, Quận 3, TP Hồ Chí Minh. Email: [email protected].

Share
facebookShare on FacebooktwitterShare on TwitterpinterestShare on Pinterest
linkedinShare on LinkedinvkShare on VkredditShare on ReddittumblrShare on TumblrviadeoShare on ViadeobufferShare on BufferpocketShare on PocketwhatsappShare on WhatsappviberShare on ViberemailShare on EmailskypeShare on SkypediggShare on DiggmyspaceShare on MyspacebloggerShare on Blogger YahooMailShare on Yahoo mailtelegramShare on TelegramMessengerShare on Facebook Messenger gmailShare on GmailamazonShare on AmazonSMSShare on SMS
Post navigation
Previous post

Kinh Nghiệm Xây Nhà Cấp 4 TIẾT KIỆM – Kinh Phí Thấp

Next post

“Chàng Trai Chăn Bò” Sô Y Tiết Xây Nhà Cấp 4 Mái Nhật 1 Tỷ – Bên Trong Có Gì?

seo

seo

Related Posts

Categories Tin tức 15+ Mẫu Nhà Cấp 4 Mái Lệch Đơn Giản Từ 2 – 4 Phòng Ngủ Kèm Bản Vẽ

Nổ hũ Vin777 – Cơ hội săn jackpot cực khủng mỗi ngày

Categories Tin tức 15+ Mẫu Nhà Cấp 4 Mái Lệch Đơn Giản Từ 2 – 4 Phòng Ngủ Kèm Bản Vẽ

Hướng dẫn nạp tiền Rongho99 nhanh gọn và giao dịch tiện lợi

Cách Xem Trực Tiếp Các Trận Thể Thao Đỉnh Cao

Leave a Comment Hủy

Xem thêm

Categories Tin tức Nổ hũ Vin777

Nổ hũ Vin777 – Cơ hội săn jackpot cực khủng mỗi ngày

Tháng 10 24, 2025
Hướng dẫn nạp tiền Rongho99 nhanh gọn và tiện lợi nhất

Hướng dẫn nạp tiền Rongho99 nhanh gọn và giao dịch tiện lợi

Tháng 10 23, 2025

Cách Xem Trực Tiếp Các Trận Thể Thao Đỉnh Cao

Tháng 9 23, 2025

Hướng Dẫn Chơi Baccarat Trực Tuyến Tại Kubet11 Từ A Đến Z

Tháng 9 23, 2025

Lô tô, xổ số và slot: quản lý vốn thông minh tại 33bet

Tháng 9 23, 2025

CEO H3bet Cao Tuyết Lệ: Chiến lược nâng tầm thương hiệu cá cược tại châu Á

Tháng 9 22, 2025

Đăng nhập Azbet88 cực nhanh: Bí quyết truy cập an toàn mọi lúc

Tháng 9 19, 2025

Slot Ai Cập cổ đại “Legacy of Egypt” tại pq88 tung bonus cực sốc

Tháng 9 19, 2025

Đăng nhập YSB66 nhanh gọn: Giữ an toàn tuyệt đối khi truy cập

Tháng 9 18, 2025

Letou Cam kết chơi game có trách nhiệm

Tháng 9 18, 2025

Giới thiệu

Housincopremium.vn cung cấp các bài viết, đánh giá chi tiết về căn hộ, chung cư và nhà phố. Cung cấp thông tin giúp người tiêu dùng lựa chọn bất động sản phù hợp với nhu cầu và ngân sách của mình, từ đó hỗ trợ quyết định đầu tư đúng đắn.

vin88, sv388, k8cc, s666, vin88, 23win, pg88, xin88, fun88, nhà cái uy tín, soi kèo nhà cái, vin777, kubet11, 79king, mb66, 33win, ae888, 789win, 8kbet, hi88, jun88, u888, ee88, kingbet86, 33bet, azbet88, h3bet, pq88, ysb66, letou, ibet68, vx88, km1888b, rongho99, b52, 123b, hb88, az888, ku68, 888b, bet88, loto188, win55, xoso66, vb777, 12bet, 999bet, 123win, good88, keonhacai5, go789, kubet77, qh88, iwinclub, mksport, win456, 78win, topzo, 77ball, ab77, abc8, b52club, fo88, kubet77, i5bet, cado88, 99vina,

Liên hệ

Phone: 0912 629 165
Email: [email protected]
Địa chỉ: Số 28, Đường Nguyễn Thị Minh Khai, Phường 6, Quận 3, TP Hồ Chí Minh, Việt Nam

Copyright © 2025 housincopremium.vn
Danh mục
  • Trang chủ
  • Tin tức
  • Review
  • Mẫu nhà cấp 4
  • Phong thuỷ